Gewerbefläche in zentraler Lage von Jena

Weigelstraße 7, 07743 Jena
  • jenawohnen_8ae5def2-9b12-400b-b410-1145e1c24775
  • jenawohnen_99e30c2b-a8f3-44b8-88b6-481c12b6c5fc

Mietkosten

Kaltmiete

1,620 €

Gesamtmiete

1,970 €

Nebenkosten

350,00 €

Kaution

4.860,00 €

Objektdetails

Fläche: 108 m²
Etagenzahl: 0
Wi-Nr.: 6203-7-15/2
Bezugsfrei ab: nach Vereinbarung

Büro/Praxis

Barrierefrei

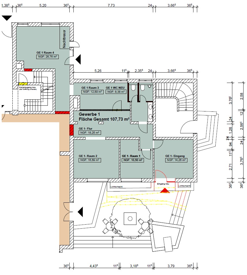
Grundriss

jenawohnen_99e30c2b-a8f3-44b8-88b6-481c12b6c5fc

Objektbeschreibung

Die zur Vermietung stehende Büro- oder Praxisfläche in der Weigelstraße 7 in Jena bietet ca. 108 m² im Erdgeschoss mit ebenerdigem Zugang. Der Grundriss ist offen und flexibel nach den Wünschen des Mieters gestaltbar. Auf Nachfrage stehen Lagerflächen im Kellergeschoss zur Verfügung.

Lage

Weigelstraße 7, 07743 Jena

Die Weigelstraße liegt im Herzen von Jena-Zentrum, in unmittelbarer Nähe zu den zwei großen Einkaufszentren der Stadt. Es handelt sich um eine belebte Fußgängerzone mit hoher Passantenfrequenz, umgeben von Einzelhandel, Gastronomie und Dienstleistern. Die Anbindung an den öffentlichen Nahverkehr ist hervorragend; der Bahnhof Jena Paradies ist fußläufig erreichbar. Das Umfeld profitiert von einer hohen Kaufkraft, zahlreichen Studierenden und touristischem Interesse. Die Lage zählt zu den attraktivsten und sichtbarsten Adressen im Innenstadtbereich von Jena.

Ihr Ansprechpartner

Herr Tobias Geißler

+49 3641 884422

Löbdergraben 19, 07743 Jena

Grundriss

jenawohnen_99e30c2b-a8f3-44b8-88b6-481c12b6c5fc

Anfrage

Hier können Sie eine Nachricht an den Anbieter senden.

Das betreffende Objekt:
Objekt Nr.: 6203-7-15/2