Gewerbeflächenausbau nach Ihren Wünschen direkt neben dem Uniklinikum

Ziegesarstraße 17, 07747 Jena Lobeda-Ost
  • jenawohnen_ad5ace04-d50d-4dde-90e3-58c2c568bb6e
  • jenawohnen_5b13caee-22db-420d-a965-3f3287172e12
  • jenawohnen_724f1b7b-9cc1-4469-b39f-710dc3804dc1
  • jenawohnen_9c49781d-982c-439b-b0db-194700693aeb

Mietkosten

Kaltmiete

1,180 €

Gesamtmiete

1,514 €

Nebenkosten

334,00 €

Kaution

3.600,00 €

Objektdetails

Fläche: 118 m²
Etagenzahl: 0
Wi-Nr.: 106/17/1
Bezugsfrei ab: sofort

Büro/Praxis

Barrierefrei

Ausstattung

Die Gewerbefläche befindet sich im Rohbau und kann in der Raumaufteilung und der technischen Ausstattung an die individuellen Bedürfnisse der Interessenten angepasst werden. Zu der Gewerbefläche ist es möglich einen Kellerraum mit 10 m² im Untergeschoss anzumieten für 40 Euro im Monat. Die Ausstattung kurz zusammen gefasst: flexible Raumaufteilung individuelle EDV Verkabelung und Elektroinstallation barrierefrei Smarte / intelligente Heizungssteuerung Licht- und Steckdosensteuerung schnelles Internet mit Glasfaserkabel

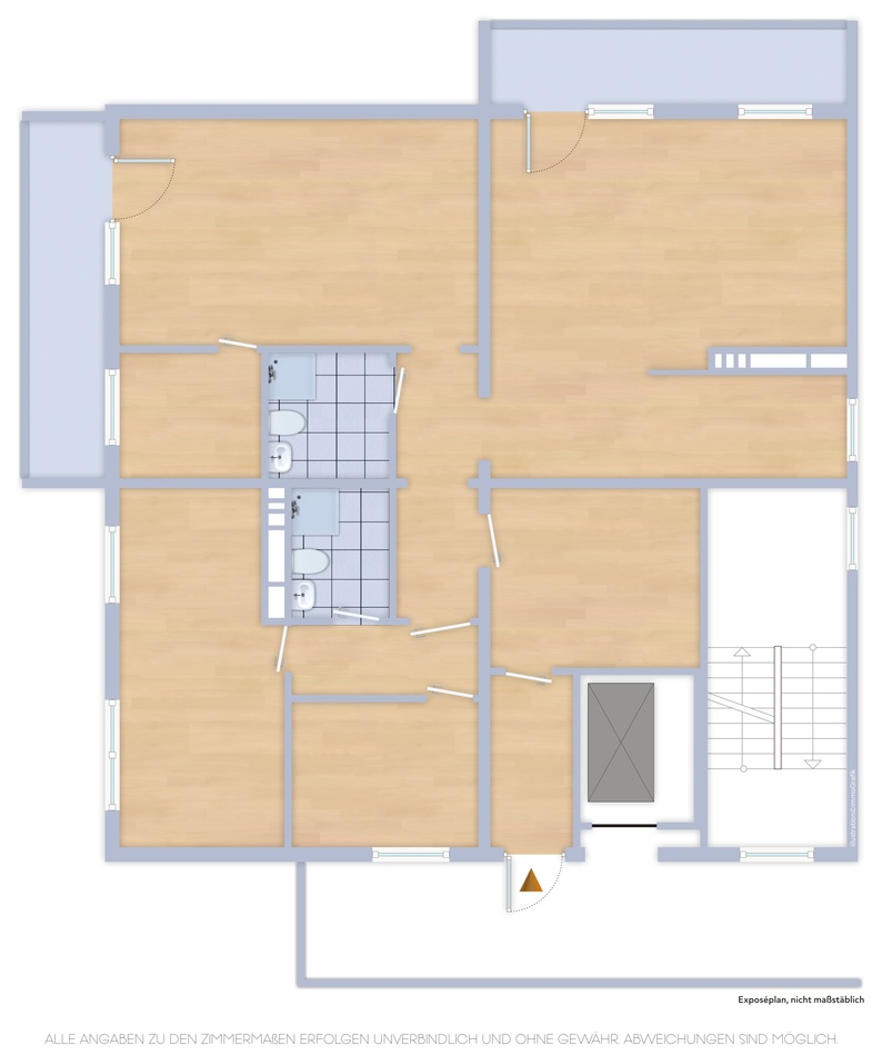
Grundriss

  • jenawohnen_5b13caee-22db-420d-a965-3f3287172e12
  • jenawohnen_724f1b7b-9cc1-4469-b39f-710dc3804dc1
  • jenawohnen_9c49781d-982c-439b-b0db-194700693aeb

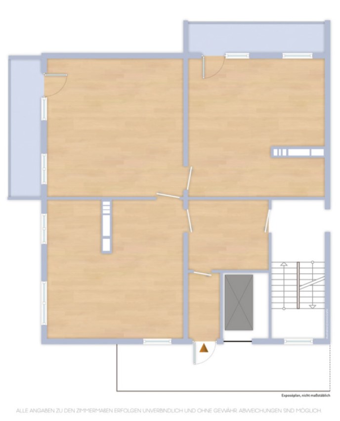
Grundriss

  • jenawohnen_5b13caee-22db-420d-a965-3f3287172e12
  • jenawohnen_724f1b7b-9cc1-4469-b39f-710dc3804dc1
  • jenawohnen_9c49781d-982c-439b-b0db-194700693aeb

Grundriss

  • jenawohnen_5b13caee-22db-420d-a965-3f3287172e12
  • jenawohnen_724f1b7b-9cc1-4469-b39f-710dc3804dc1
  • jenawohnen_9c49781d-982c-439b-b0db-194700693aeb

Objektbeschreibung

Arbeiten in einem pulsierenden Stadtteil mit viel Raum und besten Verbindungen – im smarten Quartier Jena-Lobeda! In Lobeda-Ost, saniert die jenawohnen GmbH in unmittelbarer Nähe zum Jenaer Universitätsklinikum ein zukunftsweisendes Wohn- und Geschäftshaus mit smarten Anwendungen, die allen Mietern und Bewohnern den Alltag erleichtern.

Lage

Ziegesarstraße 17, 07747 Jena Lobeda-Ost

Das Smarte Quartier Jena-Lobeda befindet sich im Stadtteil Lobeda-Ost in direkter Nähe zum Universitätsklinikum Jena. Der öffentliche Nahverkehr befindet sich in unmittelbarer Nähe. Mit der Straßenbahn ist Jenas Innenstadt in wenigen Minuten zu erreichen. Durch die gute Anbindung zur Autobahn A4 bietet der Standort vor allem auch für Pendler eine ideale Ausgangslage in Jena.

Sonstiges

Bitte beachten Sie, dass der Grundriss für eine Raumaufteilung beispielhaft ist, d.h. der Ausbau erfolgt auf Ihrer individuellen Planung.

Ihr Ansprechpartner

Frau Stefanie Köhler

+49 3641 884249

Löbdergraben 19, 07743 Jena

Grundriss

jenawohnen_5b13caee-22db-420d-a965-3f3287172e12 jenawohnen_724f1b7b-9cc1-4469-b39f-710dc3804dc1 jenawohnen_9c49781d-982c-439b-b0db-194700693aeb

Anfrage

Hier können Sie eine Nachricht an den Anbieter senden.

Das betreffende Objekt:
Objekt Nr.: 106/17/1