Ihre moderne Praxisfläche im Neubau "Saaltor"

Saalstraße 8, 07743 Jena
  • jenawohnen_5e110819-0421-47e9-bc60-7f545f64166c
  • jenawohnen_ad1fd607-5b78-46b7-80f3-fc27a0a9bc15
  • jenawohnen_1658b92b-6f39-494d-a631-cc0bca9dfc62
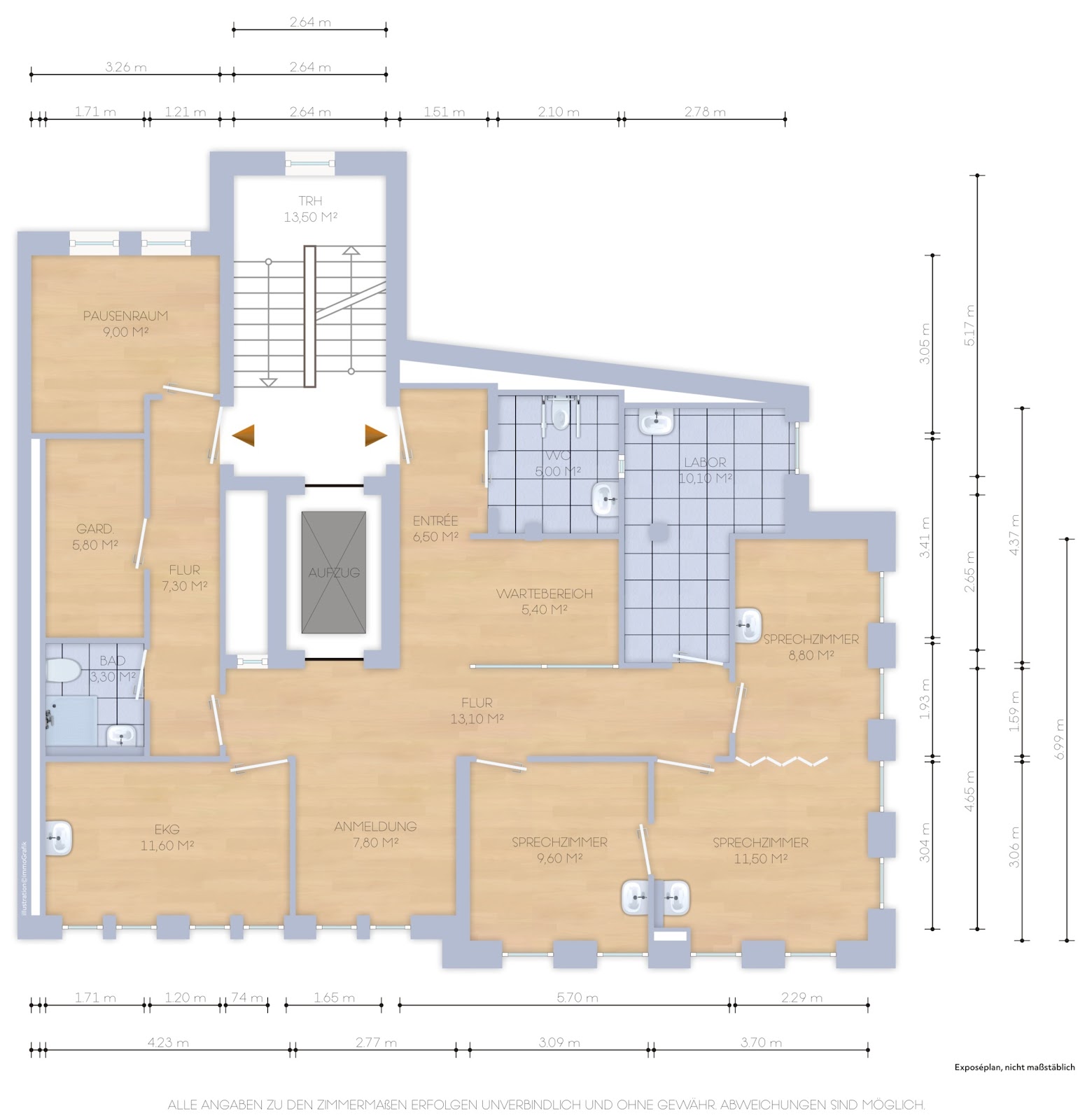
Grundriss

Mietkosten

Kaltmiete

2,596 €

Gesamtmiete

2,999 €

Nebenkosten

403,00 €

Kaution

7.500,00 €

Objektdetails

Fläche: 115 m²
Etagenzahl: 6
Wi-Nr.: 6183/7/3
Bezugsfrei ab: 4. Quartal 2026

Büro/Praxis

Barrierefrei

Personenaufzug

Ausstattung

'- schnelles Internet - barrierefreier Zugang - Aufzug - PKW Stellplätze auf Anfrage Die Raumaufteilung und technische Ausstattung kann an die individuellen Bedürfnisse der Mieter angepasst werden. Die angebotene Gewerbeeinheit befindet sich im 3. Obergeschoss mit wunderbaren Blick über die Dächer Jenas. Die Fertigstellung des Saaltor ist für das 4. Quartal 2026 geplant.

Grundriss

jenawohnen_1658b92b-6f39-494d-a631-cc0bca9dfc62

Objektbeschreibung

jenawohnen baut in der Saalstraße 6 bis 8 ein neues Wohn- und Geschäftshaus mit 25 Wohnungen, sowie sechs Büro- und Gewerbeeinheiten. Geprägt ist der Neubau von einem markanten Turmgebäude, das Bezug nimmt auf den früheren Standort des historischen Saaltors. Zudem entstehen ein ebenerdiges Parkdeck und eine Tiefgarage mit 25 Pkw-Parkplätzen.

Lage

Saalstraße 8, 07743 Jena

Der Neubau Saaltor befindet sich in einer der begehrtesten Lagen Jenas, direkt im Zentrum der Stadt. Die fußläufige Entfernung zur Altstadt machen diesen Standort sowohl für Geschäftsinhaber als auch für deren Kunden und Mitarbeiter besonders attraktiv. Mit der Universität Jena und dem modernen, neuen Hochschulcampus auf dem Inselplatz befindet sich einer der größten Einrichtungen der Stadt in unmittelbarer Nähe. Jena zählt zu den wachstumsstärksten Städten in Thüringen und ist für seine hohe Lebensqualität sowie seine Innovationskraft bekannt.

Ihr Ansprechpartner

Herr Tobias Geißler

+49 3641 884422

Saalstraße 8a, 07743 Jena

Grundriss

jenawohnen_1658b92b-6f39-494d-a631-cc0bca9dfc62

Anfrage

Hier können Sie eine Nachricht an den Anbieter senden.

Das betreffende Objekt:
Objekt Nr.: 6183/7/3